Сдается квартира м2 по ул. 82-й квартал 9 за 16000 руб.

Квартира в Магнитогорске
Цена 16 000 р.
Адрес 82-й квартал, 9
Кол-во комнат Однокомнатная
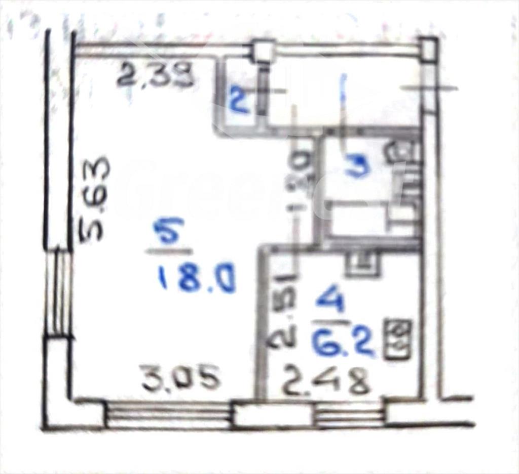
Сдаётся в ОФИЦИАЛЬНУЮ АРЕНДУ (договор + чеки) уютная 1-комнатную квартира на 1 этаже 5-этажного дома в САМОМ ЦЕНТРЕ города. Общая площадь 30.60 кв.м. Этот вариант отличается своей экономичностью, идеально подходит для молодых людей, студентов, а также для родителей или пожилых родственников. Рядом с домом находятся различные учреждения, такие как детский сады №46 и №67, детская поликлиника №2, Ангарская городская больница, Городская поликлиника №1 и многое другое. Также неподалеку расположены различные магазины и супермаркеты, включая Хлеб соль, продуктовый дискаунтер, Находку и СМС, супермаркет. МОЖНО С ДЕТЬМИ И ЖИВОТНЫМИ. СЧЁТЧИКИ И ЖКУ ВКЛЮЧЕНЫ 10 000 рублей – залог. Возвратный, при возвращении квартиры собственнику в момент выезда в первоначальном состоянии. 70% – комиссия агента в момент заключения Вами договора с собственником. Заранее ничего оплачивать не нужно. ДОКУМЕНТЫ СОБСТВЕННИКА ПРОВЕРЕНЫ. ПОКАЗ ПО ДОГОВОРЁННОСТИ. Не упустите отличную возможность арендовать эту прекрасную квартиру! Звоните прямо сейчас и записывайтесь на просмотр! P.S.: арифметика первого платежа по этой квартире: 16 000 руб. аренда + 10 000 руб. залог (вернется при выезде) + 11 200  руб.  (комиссия) = 37 200  руб.  Платежи со второго месяца аренды: 16 000  руб.  Частые вопросы по платежам: 1. Можно без залога? - нет, квартира не пустая, без залога нельзя 2. Можно без комиссии? - нет, без комиссии нельзя. Но её можно оплатить картой, наличными, переводом или QR-кодом. Номер объекта: #22/537140/20002
Объявление № 23913598
Дата подачи:
14 февраля 2026 г. 4:35
Дата обновления:
14 февраля 2026 г. 4:35
Просмотров 51 Хотите продать быстрее?

Продавец
Екатерина
email: greenestgroup@mail.ru
Показать номер телефона
Пожаловаться
Комментарии:
Добавить