Двухкомнатная квартира 57,00 м2 по ул. Сталеваров 15/2 за 5249000 руб.

Двухкомнатная квартира по ул. Сталеваров, 15/2 в Магнитогорске
Цена 5 249 000 р. (92 088 р./м2)
Подать заявку на ипотеку
Район Правобережный
Адрес Сталеваров, 15/2
Этаж 4/10
Высота потолка 2,65 м.
Планировка 97 серия
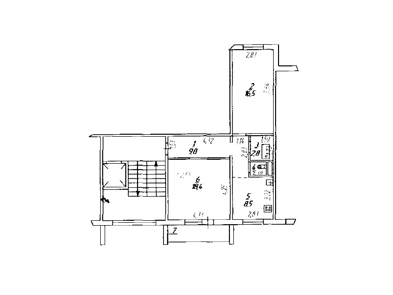
Площадь общая 57 м2, жилая 35 м2, кухни 9 м2
Состояние квартиры Хорошее
Кол-во комнат Двухкомнатная
Год последнего ремонта 2020 г.
Светлая двухкомнатная квартира в центре города ЖК «Ладья», расположение окон: запад-восток. Состояние хорошее: пластиковые окна и трубы, межкомнатные двери, полы залиты (покрытие - ламинат и плитка), в санузлах - кафель, балкон застеклён, отделан вагонкой. В подарок покупателю остаются: кухонный гарнитур, стенка в гостиной, мебель в прихожей, шкаф в спальне, кондиционер. В шаговой доступности находятся школы, детские сады, торговые центры, остановки общественного транспорта. Подъезд ухоженный, соседи приветливые. Возможно приобретение квартиры в ипотеку, с использованием любых сертификатов. Чистая продажа.
Описание дома
Этажность дома 10
Объявление № 23164006
Дата подачи:
21 августа 2025 г. 13:25
Дата обновления:
24 ноября 2025 г. 16:38
Просмотров 296 Хотите продать быстрее?

Продавец
Агентство недвижимости:
Показать номер телефона
с 9 до 22
Пожаловаться
Комментарии:
Добавить