Трехкомнатная квартира 56,20 м2 по ул. Карла Маркса 186 за 4200000 руб.

Трехкомнатная квартира по ул. Карла Маркса, 186 в Магнитогорске
Цена 4 200 000 р. (74 733 р./м2)
Подать заявку на ипотеку
Район Орджоникидзевский
Адрес Карла Маркса, 186
Этаж 9/9
Высота потолка 2,5 м.
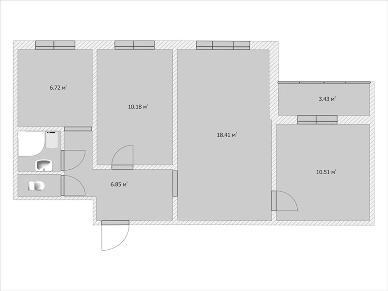
Площадь общая 56,2 м2, жилая 40 м2, кухни 7 м2
Состояние квартиры Хорошее
Кол-во комнат Трехкомнатная
🔥 Продается 3-комнатная квартира 56,2 м² на 9 этаже с лифтом! Пр. Карла Маркса 186 📍 Идеальное расположение в самом сердце города! Трехкомнатная квартира в блочном 9-этажном доме с пассажирским лифтом на 9 этаже – никаких шумных соседей сверху! ✨ Квартира в хорошем состоянии с косметическим ремонтом: ✅ Все окна пластиковые, выходят на восток – много света! ✅ Крепкие деревянные полы – не скрипят, проверено годами эксплуатации ✅ Застекленная лоджия – дополнительное пространство для отдыха ✅ Ровные стены – готовы к вашему ремонту или сразу для проживания ✅ Раздельный санузел – удобно для большой семьи ✅ Полностью меблирована: остается кухонный гарнитур, спальный гарнитур, прихожая, стенка-горка, диван – заезжайте и живите! 🏢 Дом и подъезд: ✅ Подъезд после свежего ремонта – чисто и уютно ✅ Доброжелательные соседи – комфортное проживание ✅ Установлен домофон – безопасность вашей семьи ✅ Заведен высокоскоростной интернет – работайте и отдыхайте без проблем 🛣️ Удобная транспортная доступность: Легкий заезд с улиц Завенягина, Карла Маркса, Галиуллина, Бориса Ручьева. На машине или общественном транспорте – добираться до любой точки города одно удовольствие! 🛒 В шаговой доступности все необходимое: • Продуктовые магазины: Пятерочка, Магнит • Знаменитое кафе "Бисквит" – идеально для встреч • Детские сады №97, • Школы №18, 36, • Дом творчества для развития детей • Остановки общественного транспорта • Торговые центры для шопинга • Малый сквер "Магнит" с фонтаном, тренажерами и детской площадкой • Театр "Буратино" – культурный отдых для всей семьи • Бульвар "Огни Магнитки" – прогулки вечером 📋 Юридическая чистота: ✅ Без перепланировок – все легально ✅ Более 5 лет в собственности ✅ Чистая продажа, готовы к быстрой сделке 📞 Показ в удобное для вас время! Договоримся по телефону – покажу квартиру в любой день недели.
Описание дома
Этажность дома 9
Объявление № 23879434
Дата подачи:
27 января 2026 г. 15:22
Дата обновления:
27 февраля 2026 г. 15:44
Просмотров 81 Хотите продать быстрее?

Продавец
Показать номер телефона
Пожаловаться
Комментарии:
Добавить