Однокомнатная квартира 45,00 м2 по ул. Труда 61/1 за 3400000 руб.

Однокомнатная квартира по ул. Труда, 61/1 в Магнитогорске
Цена 3 400 000 р. (75 556 р./м2)
Подать заявку на ипотеку
Район Орджоникидзевский
Адрес Труда, 61/1
Этаж 10/10
Высота потолка 2,5 м.
Планировка индивидуальный проект
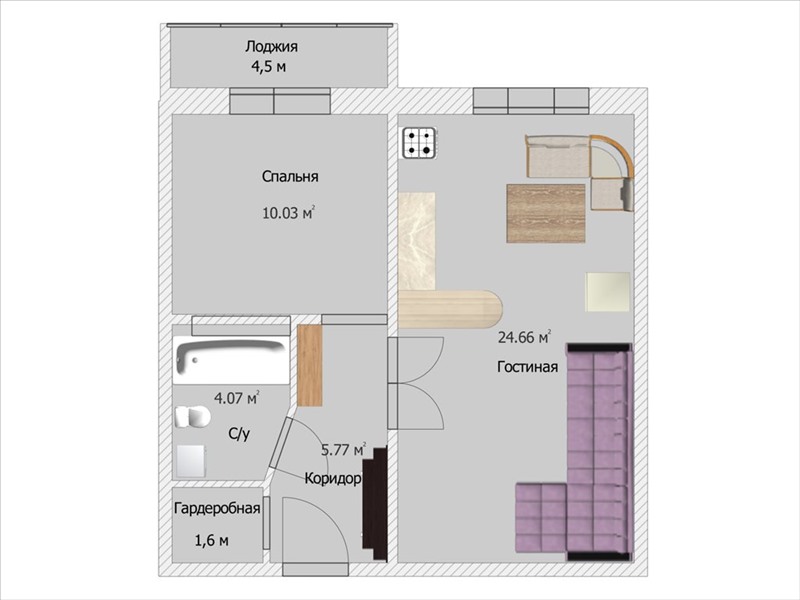
Площадь общая 45 м2, жилая 25 м2, кухни 10 м2
Состояние квартиры Среднее
Кол-во комнат Однокомнатная
**Продается 1-комнатная видовая квартира 45 м² в ЖК «Ключ»!** 📍 **Адрес:** ул. Труда, 61/1 📍 **Этаж:** 10/10 (последний этаж!) 📍 **ЖК:** «Ключ» — современный и комфортный **Почему стоит обратить внимание?** ✨ **Панорамный вид на западную линию горизонта** — рассветы и закаты прямо из окна! Идеально для романтиков и ценителей простора. ✨ **Косметический ремонт** — заезжай и живи! Не нужно тратить время и деньги на переделку. ✨ **Нет соседей сверху** — тишина и покой гарантированы. ✨ **Застеклённая лоджия** — дополнительное пространство для отдыха или хранения. ✨ **Просторный совмещённый санузел** — легко разместить стиральную машину, водонагреватель и всё необходимое. ✨ **Удобная планировка:** встроенный шкаф + гардеробная при входе — порядок без лишних усилий! ✨ **Чистовые материалы:** линолеум на полу, обои на стенах, покрашенные потолки — всё аккуратно и современно. ✨ **Отличная шумо- и звукоизоляция** — дом добротный, соседи не слышны. ✨ **Грузо-пассажирский лифт + видеонаблюдение** — комфорт и безопасность на высоте. **Инфраструктура района — всё под рукой:** 🌳 Ухоженные дворы и детские площадки 🏫 Школа и детский сад — в шаговой доступности 🛒 Магазины повседневного спроса рядом 🚌 Остановки общественного транспорта — легко добраться в любой район города **Для кого эта квартира?** ✅ Для молодой семьи ✅ Для тех, кто ищет уютное «гнездышко» ✅ Отличный **инвестиционный вариант** — легко сдать в аренду! **Условия продажи:** 🔹 Один взрослый собственник 🔹 Чистая продажа, торг при наличном расчете 🔹 Документы готовы 📞 **Звоните прямо сейчас, чтобы договориться о просмотре или уточнить детали!** Ваша новая квартира с видом на горизонт уже ждёт вас!
Описание дома
Этажность дома 10
Объявление № 23417268
Дата подачи:
18 октября 2025 г. 0:40
Дата обновления:
18 октября 2025 г. 0:40
Просмотров 46 Хотите продать быстрее?

Продавец
Показать номер телефона
Пожаловаться
Комментарии:
Добавить