Четырехкомнатная квартира 89,67 м2 по ул. Карла Маркса 27 за 10312050 руб.

Четырехкомнатная квартира по ул. Карла Маркса, 27 в Магнитогорске
Цена 10 312 050 р. (115 000 р./м2)
Подать заявку на ипотеку
Адрес Карла Маркса, 27
Этаж 2/4
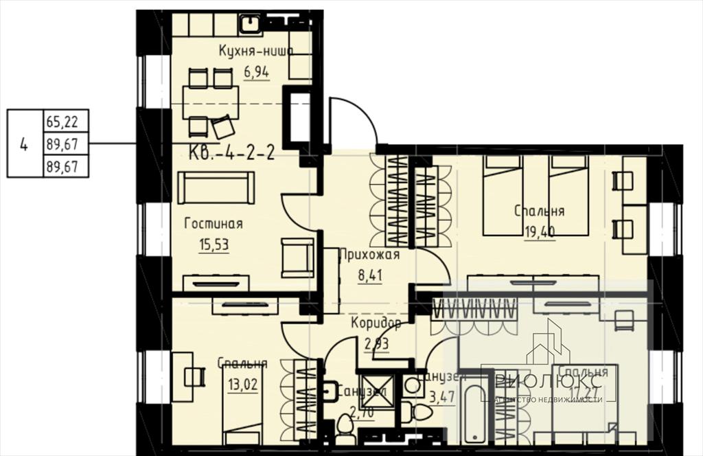
Площадь общая 89,67 м2, жилая 65,22 м2, кухни 7 м2
Кол-во комнат Четырехкомнатная
id:45498. НЕСТАНДАРТНАЯ ПЛАНИРОВКА ЧЕТЫРЕХКОМНАТНАЯ КВАРТИРЫ В ПРЕДЧИСТОВОЙ ОТДЕЛКЕ С ЭРКЕРОМ, С БОЛЬШОЙ КУХНЕЙ-ГОСТИННОЙ МЕЧТА ЛЮБОЙ ХОЗЯЙКИ! ПЛАСТИКОВЫЕ ОКНА БЕТОННАЯ СТЯЖКА ВЫРОВНЕНЫ и ОТШТУКАТУРЕНЫ СТЕНЫ РАЗВЕДЕНА ПРОВОДКА НОВЫЕ РОДИАТОРЫ ПЕРЕГОРОДКИ ИЗ ПАЗОГРЕБНЕВОГО БЛОКА СОВРЕМЕННЫЙ ДИЗАЙН ПОДЪЕЗДА С ВЕСТИБЮЛЕМ, КОЛЯСОЧНЫМИ, ВИТРАЖНЫЕ ДВЕРИ НА ВХОДЕ, ЧЕТЫРИ ЭТАЖА КРАСОТЫ И КОМФОРТА, МОЛДИНГИ, КАРНИЗЫ В СТИЛЕ СТАЛИНСКОГО АМПИРА!  ЗАКРЫТЫЙ ДВОР ОСНАЩЕННЫЙ ВСЕМИ ЗОНАМИ ДЛЯ ОТДЫХА И ДЕТСКИМИ ПЛОЩАДКАМИ ПРОДУМАННЫМИ ДЛЯ ДЕТЕЙ РАЗНЫХ ВОЗРОСТОВ, КОЛЯСОЧНАЯ С ВЫХОДОМ НА УЛИЦУ. ИПОТЕКА ОТ 6% 🌟🏢 ЖК "Опера" — современное жильё в самом сердце Ленинского района! 🏢🌟 Ищете комфортное и стильное жильё в центре города? Тогда этот уникальный жилой комплекс — именно для вас! Всего 70 эксклюзивных квартир создают атмосферу уединения и уюта в динамичном ритме мегаполиса. ✨ Почему выбирают ЖК "Опера"? 🤔 🎯 Маленький, закрытый жилой комплекс — всего 70 квартир, что обеспечивает тёплую и дружелюбную атмосферу! 🌆 Центральное расположение — всё самое лучшее в шаговой доступности: магазины, парки, школы, транспорт! 🛠️ Эксплуатируемая кровля — часть крыши превращена в современную терассу для прогулок и отдыха, не выходя за пределы комплекса! Наслаждайтесь свежим воздухом и панорамными видами! 🌇🌿 👶 Большая детская площадка — безопасное и просторное место для игр и развлечений малышей! 🧳 Коляска-колясочная с выходом во двор — удобно и практично для семей с малышами! 🚪 Современный подъезд — продуманный дизайн, качественные материалы и детали, создающие уют и безопасность для жильцов! Инфраструктура и удобство 🚶‍♂️🚗 🌳 В шаговой доступности — парки, скверы и зоны отдыха для прогулок и активного отдыха! 🛍️ Вблизи — магазины, аптеки, кафе и рестораны — всё для вашего комфорта! 🚏 Хорошая транспортная доступность — остановки рядом, чтобы быстро добраться в любой район города! 🏫 В районе — школы и детские сады, обеспечивающие комфортное развитие ваших детей! Почему стоит выбрать ЖК "Опера"? 🤩 ✨ Уют и безопасность — небольшая закрытая территория, забота о каждом жильце! ✨ Современные решения — эксплуатируемая кровля, продуманные детали подъезда! ✨ Центр города — всё под рукой, всё рядом! ✨ Идеально для тех, кто ценит комфорт, стиль и удобство! Не упустите шанс стать частью этого уникального жилого комплекса! 🚀 📞 Звоните прямо сейчас, чтобы узнать подробнее и записаться на просмотр! Ваш новый дом в центре города уже ждёт вас! 🏡✨  
Описание дома
Этажность дома 4
Объявление № 23257006
Дата подачи:
2 октября 2025 г. 21:26
Дата обновления:
2 октября 2025 г. 5:00
Просмотров 78 Хотите продать быстрее?

Продавец
Агентство недвижимости:
Владимир Бутымов
email: butymov.riolux@mail.ru
Показать номер телефона
Пожаловаться
Комментарии:
Добавить