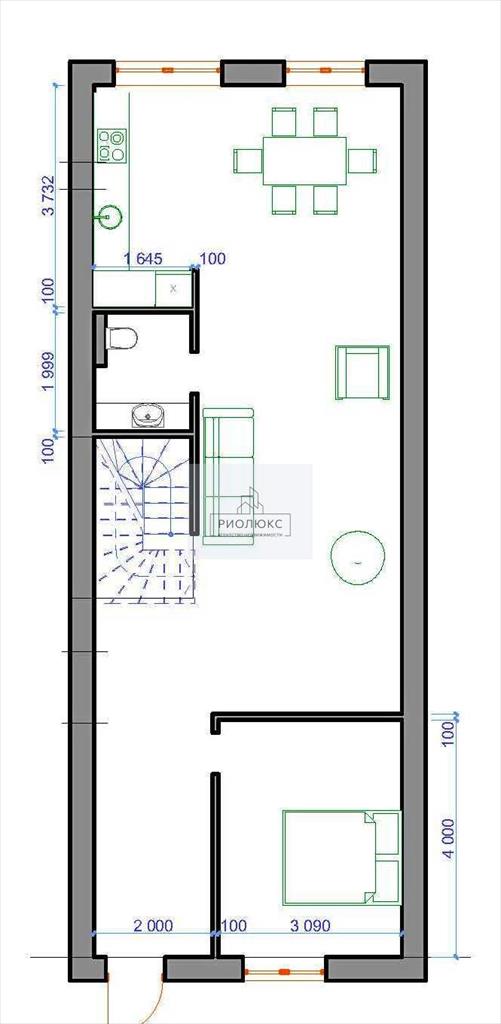
Трехкомнатная квартира 156,00 м2 по ул. Калмыкова 32А за 4990000 руб.

Трехкомнатная квартира по ул. Калмыкова, 32А в Магнитогорске
Цена 4 990 000 р. (31 987 р./м2)
Подать заявку на ипотеку
Адрес Калмыкова, 32А
Этаж 1/2
Площадь общая 156 м2, жилая 120 м2, кухни 35 м2
Кол-во комнат Трехкомнатная
id:43014. АКЦИЯ АКЦИЯ АКЦИЯ Предлагаем вашему вниманию квартиры блокированной застройки с площадью 156 кв. метров и земельным участком до 4 соток. Эти двухэтажные квартиры идеально подходят для комфортной жизни: на втором этаже расположены три спальни и санузел, а первый этаж выполнен в свободной планировке, что позволяет вам реализовать свои дизайнерские идеи. Тёплый пол на втором этаже, газовый котёл, все сети подключены и находятся внутри. Квартиры предлагаются в черновом варианте и с перегородками на первом этаже, в предчистовой отделке, что дает возможность будущим собственникам выбрать отделку по своему вкусу. В каждой квартире предусмотрены электросчётчик, центральная вода и канализация. Фундамент ленточный, кровля выполнена из мягкой черепицы, а стены состоят из шлакоблока и блоков, что обеспечивает надежность и долговечность конструкции. Придомовая территория облагорожена и закрыта, установлен шлагбаум для вашего спокойствия и безопасности. Фасад утеплён пенополистиролом экструдированного типа, а перекрытия выполнены из железобетона, что гарантирует отличную тепло- и звукоизоляцию. Также у нас в наличии таунхаусы с гаражом площадью 250 кв.м., которые могут стать отличным вариантом для тех, кто ищет больше пространства и удобства. Мы готовы предложить индивидуальные решения по отделке квартир, чтобы каждая деталь соответствовала вашим предпочтениям. Не упустите возможность стать владельцем уютного жилья, с ограниченным количеством соседей!  
Описание дома
Этажность дома 2
Объявление № 22181608
Дата подачи:
14 мая 2025 г. 6:42
Дата обновления:
29 декабря 2025 г. 21:16
Просмотров 261 Хотите продать быстрее?

Продавец
Агентство недвижимости:
email: yahin.riolux@mail.ru
Показать номер телефона
Пожаловаться
Комментарии:
Добавить